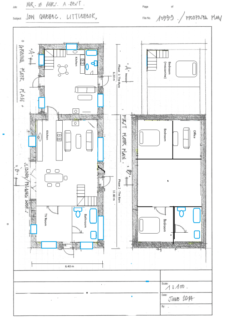
We are looking convert the existing Pigsty/Byre into a small holiday let suitable for up to four people. The concept is to have ground floor with all services and a mezzanine floor to provide space for a double bed. The house is principally off-grid with only electricity being supplied via the National Grid. We would also like to discuss the potential for a solar panel installation to the west-north-west of the barn and associated power storage in the adjacent barn.
The architect should be familiar with NYMNP/local planning and be able to produce drawings suitable to secure planning permission.
Site Plan – note it is only the Existing Barn, specifically the pigsty/Byre that we looking at. The main house/existing dwelling is complete.

Revised Layout
We are focusing on Phase 1 only at this time but the proposed design should consider and support Phase 2.

Revised External – Front


The location and directions to the property can be found here